|||||||||| |||||||||| ||||||||||

The new Archaeological Museum of Athens

Project info

  • Location_ Athens, Greece
  • Stage_ Competition Entry

A cultural "pharos" for the city of Athens.

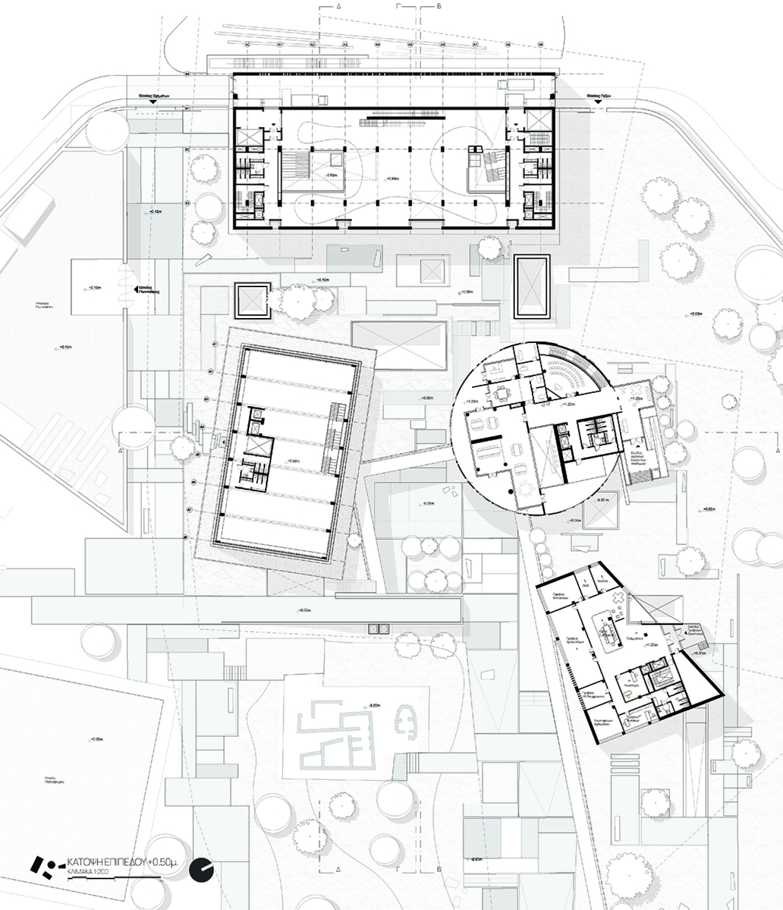
Plato's Academy expresses the values and ethics that established the modern world's culture. The archaeological park becomes the area of reference for the design of the New Museum with its values being represented in forms and geometries throughtout the whole new building.

The idea for the design of the new Museum derives from the science of Geometry itself. It consists both from the philosophical thinking established by Plato about the science and from its appliance as a tool for designing, finding and placing the ruins of an era to the modern world.

The Museum is placed largely underground in order not to interrupt the urban continuity and the landscape coherence of the existing park. A promenade leads the visitors from the ancient ruins of the Gimnasium to the main entrance of the museum, placed on a cantral patio under the ground level. The building is perceived as an excavation element, while the majority of the public uses and storage areas are covered with extensive greenery forming a new park on the terraces, the basic exhibitory spaces of the permanent and temporary exhibitions are placed in the level 0 in volumes of different shapes. The four "volumes" look like submerging from the excavation area, as modern ruins. Its element has a unique geometry representing the values of the basic geometrical shapes, circle, rectangle and square. The volumes and covered with tempered glass so that they glaze during the night, being transformed in modern "pharos" of culture for the entire metropolitan area of Attica.