|||||||||| |||||||||| ||||||||||

Το νέο Αρχαιολογικό Μουσείο Αθηνών

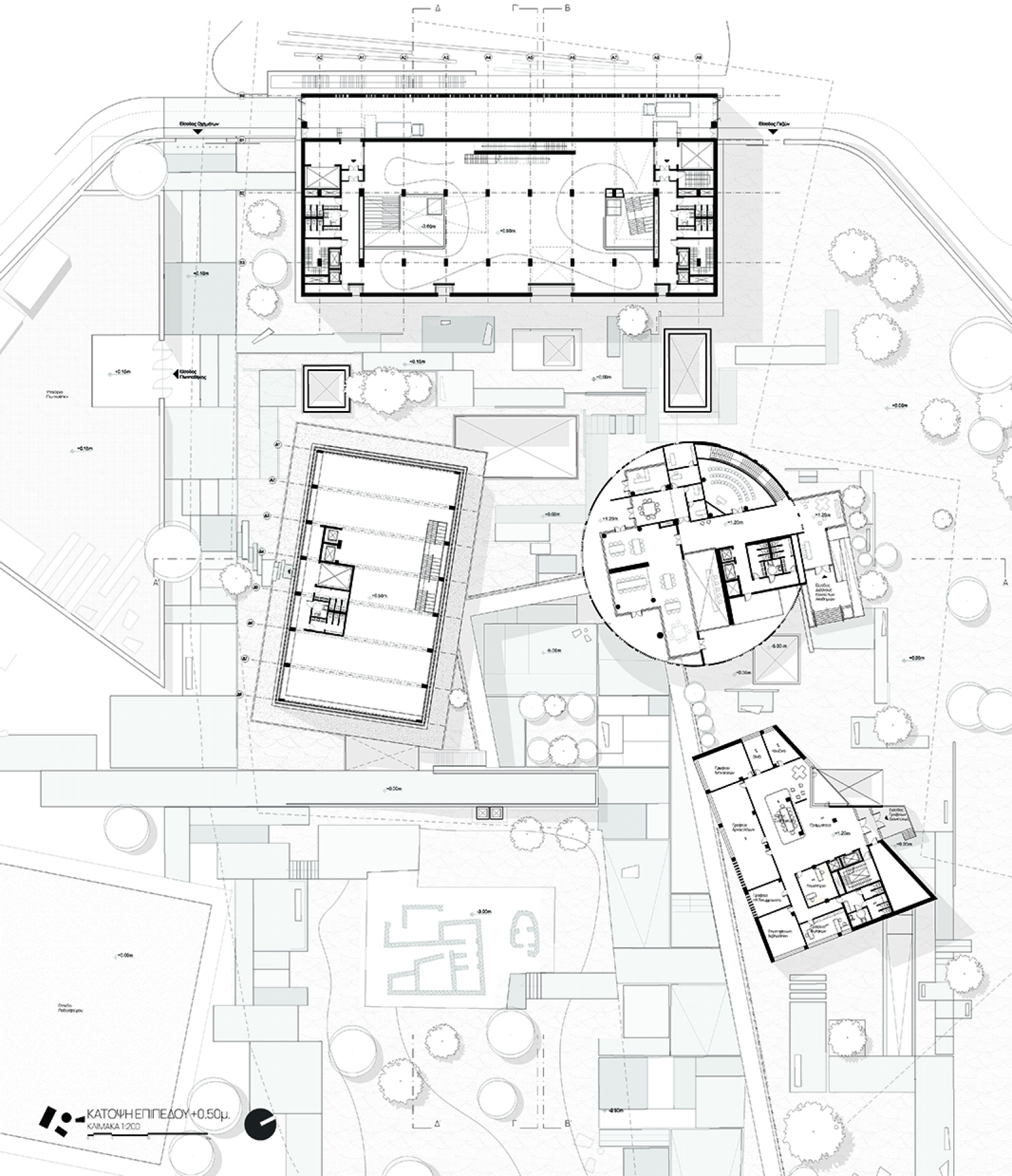
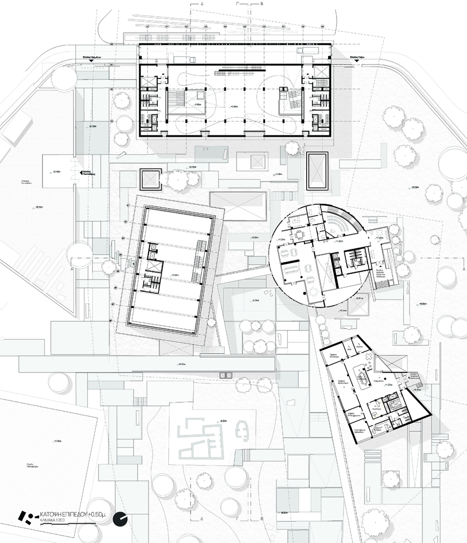
Πληροφορίες έργου

  • Location_ Αθήνα
  • Stage_ Ανοιχτός Διαγωνισμός

«Μηδείς ἀγεωμέτρητος εἰσίτω»

Η φράση που κοσμούσε το υπέρθυρο της εισόδου της Ακαδημίας του Πλάτωνα κρύβει μέσα της την πλατωνική αντίληψη, σύμφωνα με την οποία οι έννοιες της ισότητας, της δικαιοσύνης, της σωφροσύνης και της ακρίβειας θεωρούνται θεμελιώδεις και αποτελούν την προϋπόθεση για την αναζήτηση της σοφίας.

Το φιλοσοφικό υπόβαθρο που καλλιέργησε η Ακαδημία παραμένει επίκαιρο για το αξιακό σύστημα του Μουσείου. Είναι ο χώρος, που σύμφωνα με τις καταστατικές αρχές της λειτουργίας του, διασφαλίζει την ισότητα και τη δικαιοσύνη και προάγει την επαγωγική σκέψη και την κριτική και αναστοχαστική ικανότητα.

Ο πυρήνας της Ιδέας για την πραγμάτωση του νέου Μουσείου βασίζεται στη Γεωμετρία. Απαρτίζεται τόσο από την αφαιρετική φιλοσοφική αρετή που συμπυκνώνεται στην θεωρία του Πλάτωνα, όσο και από την πρακτική εφαρμογή της ως εργαλείο για τη διενέργεια της ανασκαφικής διαδικασίας και την ανασύνθεση ων υλικών κατάλοιπων του παρελθόντος.